CORDULA YIM

Innenarchitektur

Schönbornstrasse 57

76646 Bruchsal

+49 171 22 69 355

SHOP DESIGN
VOM Entwurf BIS ZUR Realisierung

Unsere Leistung: Massgeschneiderte Konzepte und Enwürfe für Verkaufsflächen
— Ladenkonzept
— Raumkonzept
— Entwurf und Visualisierung in der Beratungsphase
— Planung

— Detailplanung
— Koordination der Gewerke bei der Realisierung vor Ort

— Qualitätsmanagement aus einer Hand

Shop Design

konzepte für Verkaufsflächen

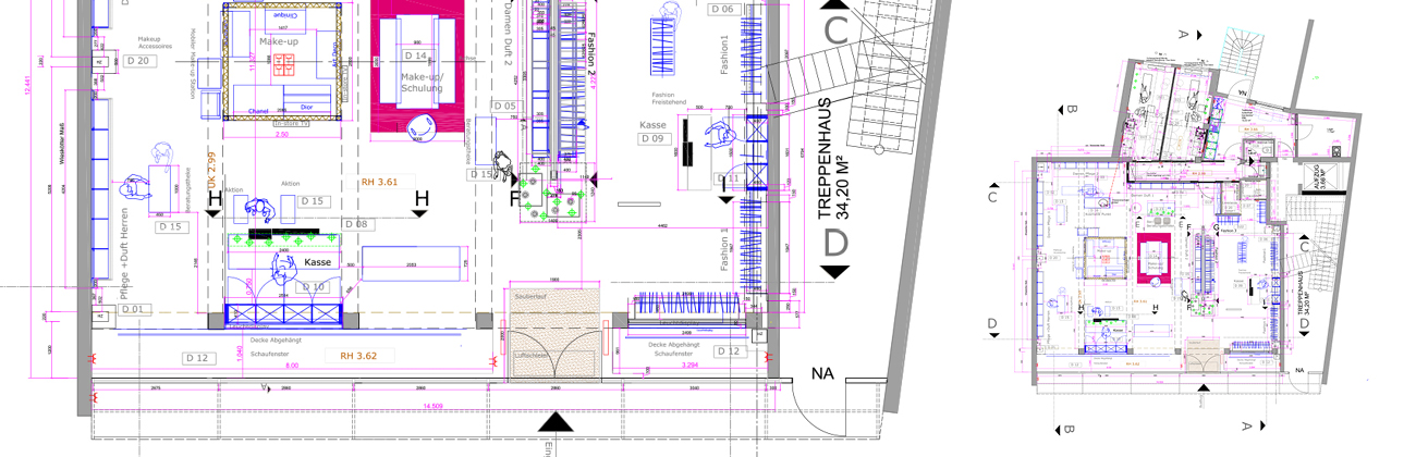
Entwurf für Stephan Parfümerien — Neue ladengeschäfte in Darmstadt und bretten

Atmosphäre und Licht

Lichtplanung

Stephan Parfümerien

Massgeschneidert: Ladenkonzept — Raumkonzept — Entwurf — Planung — Realisierung

Beratung und Entwurfsvisualisierung ( Konzept und Entwurf Cordula Yim, Visualisierung Katharina Woll )

Material- und Farbkonzept

Detailplanung

Stephan Parfümerien

Bauleitung — Koordination der Gewerke

Qualitätsmanagement aus einer hand

Stephan Parfümerien — Neue Verkaufsflächen